套针外周导管排气接头液体泄漏测试仪
执行标准
完全符合YY0285.5-2018标准测试要求的有关规定
技术参数
主体支架:铝型材及钣金制造;
水槽:透明亚克力制造;
静水面刻度:0-1米;
静水平面高度:200 ±5 mm-1000 ±5 mm静水面可调。
时间控制器:0-999秒
夹具:不锈钢制造304材料;
净重:22.5kg
用电要求:220V.50hz;
外形尺寸:长宽高:460-360-1450mm
配高温箱:
制冷恒温水箱广泛用于蒸馏、干燥、浓缩及温渍化学药 品或生物制品。 该水箱用进口不锈钢制造,箱体容积大,隔层采用聚胺酸发泡材料,保温性能良好,特有的气流循环装置,使腔内温度均匀,采用的微电脑智能化控温。
使用电源:220v.50HZ
额定功率:1000W
水温波动:±1℃(微电脑智能化控温.精度高
水温均匀性:1℃
控温范围 根据客户要求低温度安装压缩机,既客户要求低温度10-100度
该产品可带有外循环装置,可将恒温水箱内的水循环到客户其他装置内,然后再循环到水箱内。
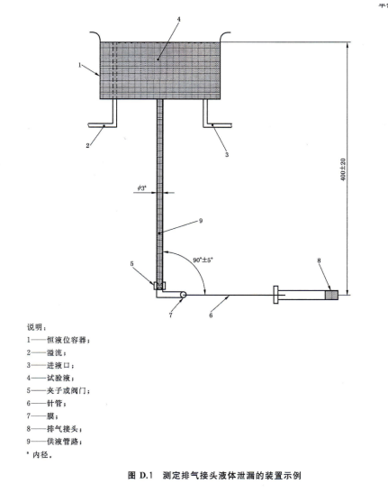
试验液
溶解9g分析纯氯化钠于蒸馏水或去离子水中,制备1L氯化钠溶液[0.9%(质量浓度)]。混合550 ml 氯化钠溶液(D.2.1)和450 mL USP 级或更高级别的甘油,制备试验液。

